Project Overview
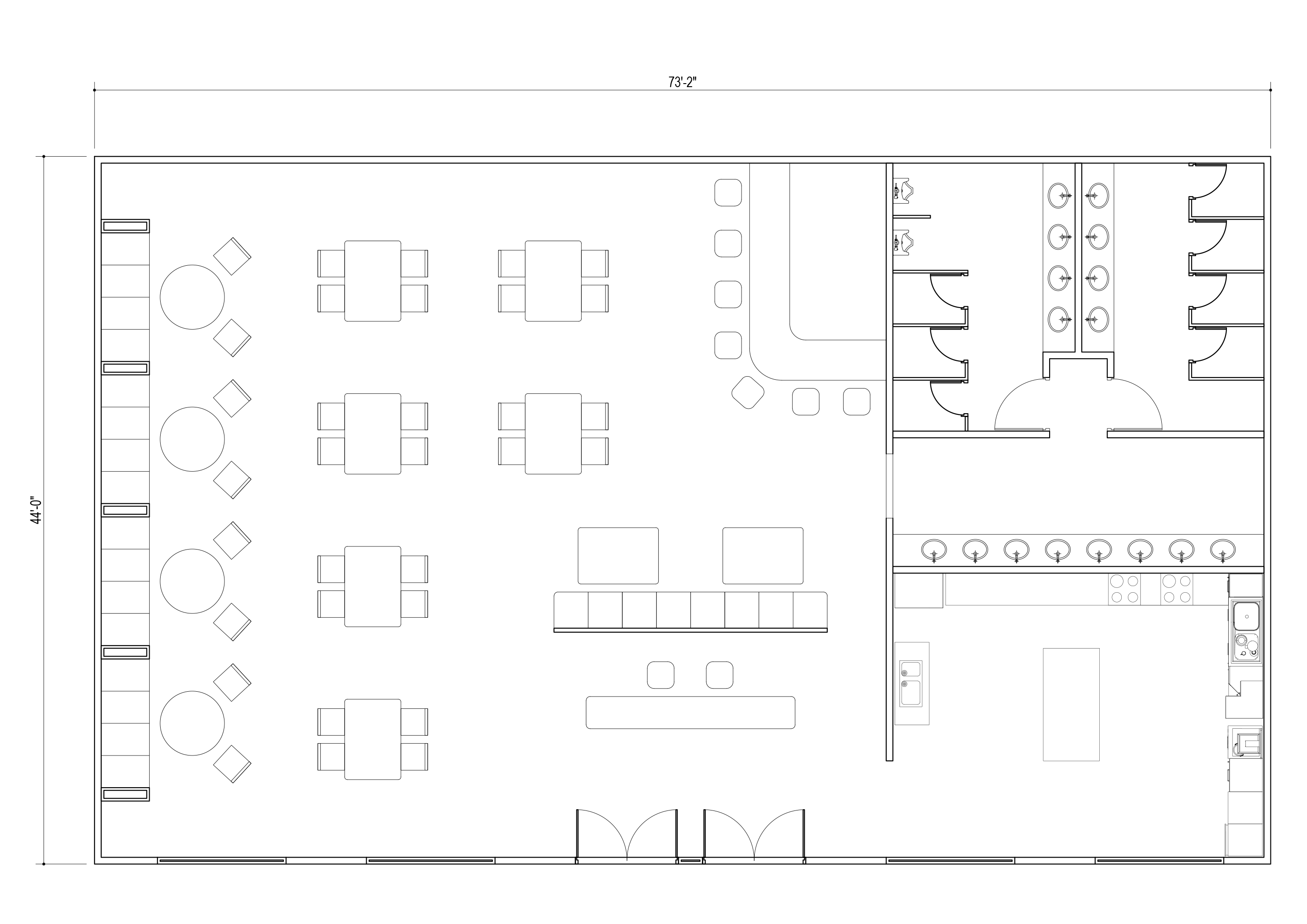
The Restaurant Project encompasses a total area of 3018 square feet, with a kitchen space spanning 408 square feet. With a seating capacity for 56 individuals, complemented by 7 barstools, the establishment offers ample space for dining. Additionally, it features separate restroom facilities for male and female patrons, alongside a designated washroom area, ensuring a comfortable and convenient experience for all guests.
Layout Plan
Renders
Elevation
Section
Orthographic View
Furniture Selection
Round Tamara Marble Ceramic Table
Kirk Restaurant Chair
Khmara Lamp
Kenza Restaurant Sofa
Artificial Banana Plant
Rectangular Tamara Marble
Ceramic Table